William Lyon Homes
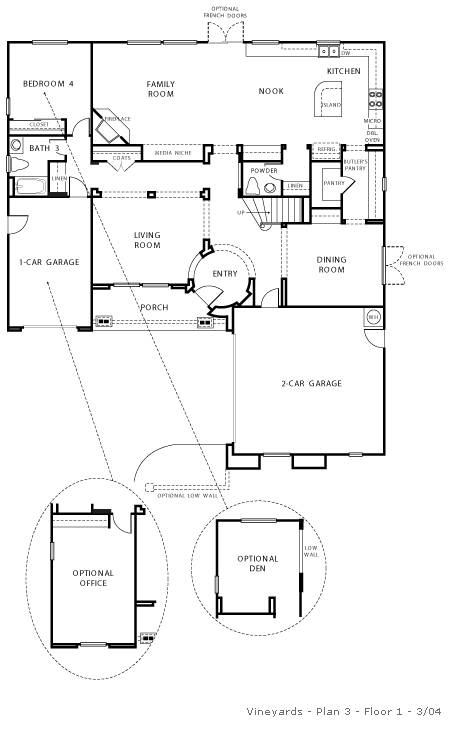
Floorplan Level 1
Print | Close
The Vineyards
Champagne


Champagne

Floorplans
Level 1
Level 2

Bedrooms
4 Bedrooms, Loft
Baths
3.5 Baths
Garage
3-Car
Price
Sold Out




For more information call:
Contact Us Via Email